Cellatica (BS), Italy – 2013 – 2014
Completion scheduled- december 2014
Overall dimension 150 sqm + 150 sqm underground
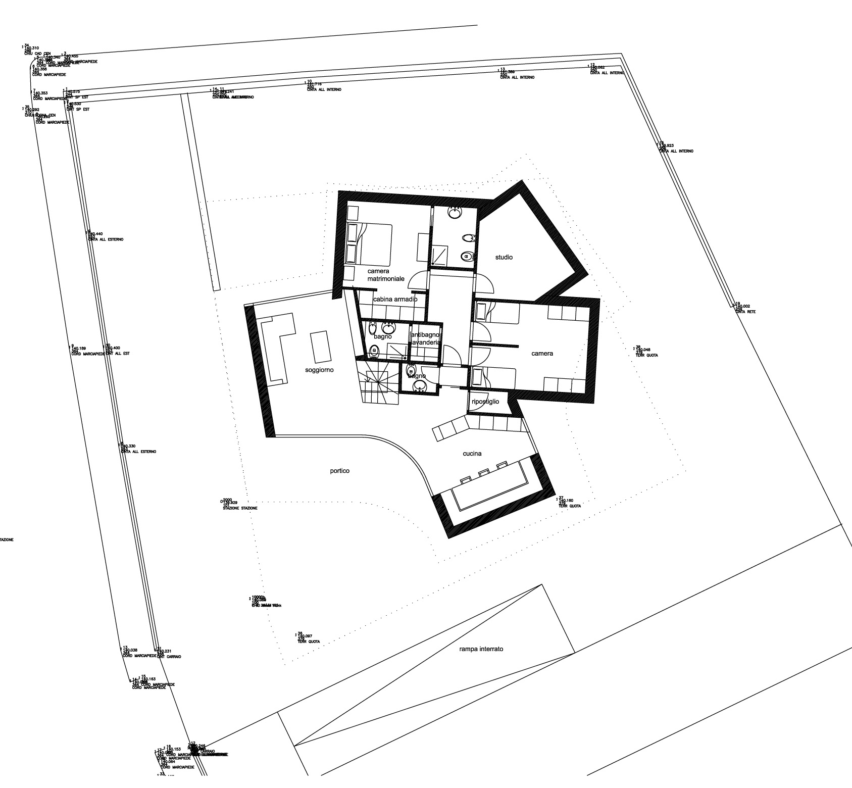
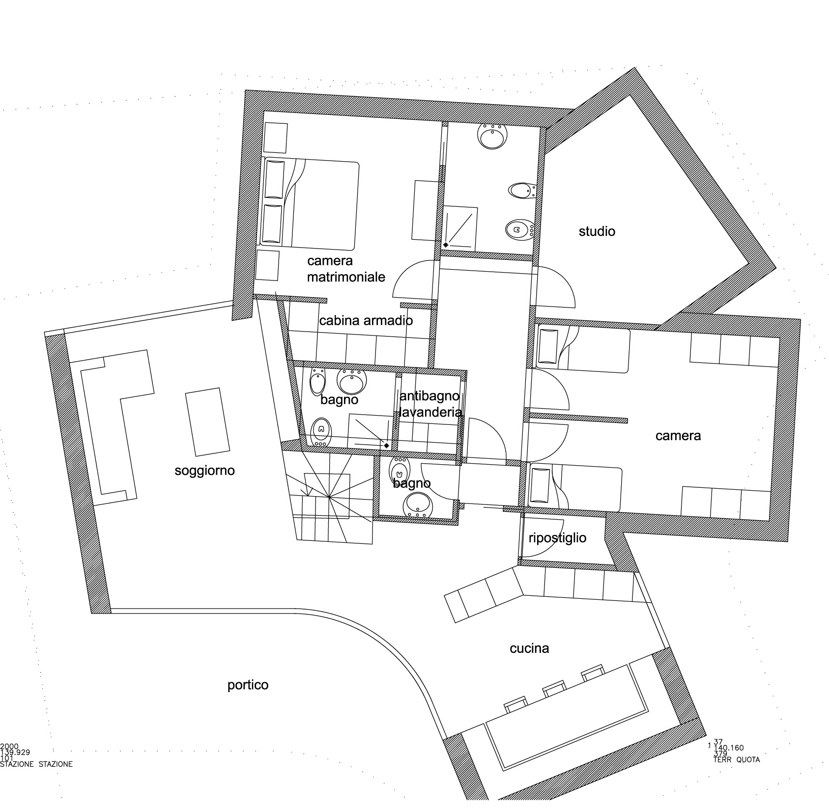
This villa is placed on a plain plot, which is walled on two edges, with the North wall made of Botticino marble split stones. The Villa is shaped like an asterisk or a sea star, so to enhance the relationship between the inner spaces and the garden, which is thus made of three main gardens connected together. Another stone wall, made in the same way of the
existing one and connected to it, is built in North-South direction to protect the house and guarantee privacy from the public street.
Villa and garden are shaped so that each room has a private portion of the garden. Living room, dining room and kitchen are a single flowing and uninterrupted space, which is separated from the garden through glass facades both southward and northward. The South main portico is deep enough to protect the interior from the heat of summer’s sun,
while letting solar rays in during the winter. This is a device directly taken from ‘cascinas’, the typical historical rural buildings of Po Valley.
Also the use of natural materials such as Botticino marble and wood is aimed at enhancing the tactile qualities of the building as well as its balance with the landscape and the surroundings.
Questa villa sorge su un lotto pianeggiante, murato su due lati, con il muro a nord costruito in pietra di Botticino a spacco. La villa è progettata a forma di asterisco, o stella marina, in modo da esaltare la relazione tra gli spazi interni e il giardino, che risulta così formato da tre giardini principali connessi tra di loro.
Un altro muro in pietra, costruito come quello esistente e a questo connesso, è costruito in direzione nord-sud per proteggere la casa e garantire privacy rispetto alla strada pubblica.
La villa e il giardino sono progettati in modo che ogni stanza abbia una porzione privata di giardino. Il soggiorno, la zona pranzo e la cucina sono un singolo e ininterrotto spazio, che è separato dal giardino da grandi vetrate sia verso sud che verso nord.
Il portico principale a sud è sufficientemente profondo da proteggere l’interno dal caldo estivo, lasciando invece penetrare all’interno i raggi solari durante l’inverno. Questa impostazione è presa direttamente dalle cascine tipiche della pianura Padana.
Anche l’uso di materiali naturali come la pietra di Botticino e il legno mira ad esaltare le qualità tattili dell’edificio così come l’equilibrio con l’intorno e il paesaggio.












