Monticelli Brusati, Brescia, 2010-2014
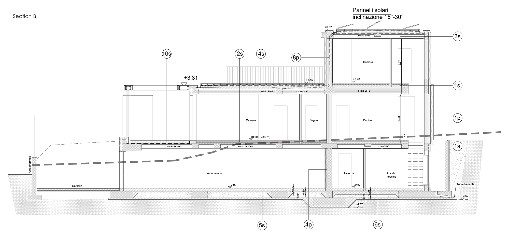
Villa II was specifically born from the needs of its inhabitants, built around its internal spaces through the presence of the architectural elements, the relationship between spaces and landscape, the nature of materials and the quality of light. The plot is in an urban area of recent realization. The entire area is conceived as a series of isolated objects with no notable relationship between each other. As a consequence the house tries to refer more to the elements of the landscape, such as hills and distant significative historical buildings, rather than to its built neighbours. The ground floor is closed in a walled garden, that gives privacy from the street and adjacent plots, allowing views towards the hills and the landscape. The first floor is characterized by decks with great views through the landscape. The living room, separated from the garden through the porch and a glass wall, creates a proper ambiance for relax giving at the same time the feelings of protection and freedom. Protection and freedom are the two main feelings that inspired the design of the house.
The sense of construction is conceptually derived from a mass of masonry that becomes more excavated as it becomes more exposed to the sun. Masonry is sometimes stone and more often it is plastered. The house derives conceptually from Italian ‘Cascine’, the rural buildings of Po Valley. Though the outcome may seem completely different, this building, as the Cascine, is of solid masonry, with very little openings on the North facade and a great South-oriented portico. This is also strongly energy efficient. There is also a large use of local stones and wood.
This building is also provided with a complex system of home automation that, based on ABB KNX system, was designed and realized by SEPA Snc. The system allows the complete control, both on site and from remote via tablet or smartphone, of lightning, openings, temperature of different spaces, music, TV, video doorphone etc. It is extremely intuitive and easy to use and customizable.
Una casa che nasce dai bisogni dei suoi abitanti, costruita a partire dai suoi spazi interni attraverso la leggerezza e l’eleganza degli elementi architettonici, la relazione tra gli spazi e il paesaggio, la natura dei materiali e la qualità della luce.
Il lotto su cui sorge è in un’area urbana di recente realizzazione. Il piano terra è chiuso all’interno di un giardino murato, che fornisce privacy rispetto alla strada e ai lotti adiacenti, consentendo le viste verso le colline e il paesaggio.
Il primo piano è caratterizzato da terrazzo con grandi viste verso il paesaggio.
Il soggiorno, separato dal giardino dal portico attraverso un muro vetrato, con il suo soffitto ligneo curvo definisce un’atmosfera appropriate per il relax dando allo stesso tempo sensazioni di protezione e libertà.
Protezione e libertà sono i due principali sentimenti che hanno ispirato il progetto di questa casa.







































