Brescia, Italy – 2008-2009
Completion 2009
Overall dimension 220 sqm
In the heart of Brescia’s city centre, Gambero Rosso Restaurant is located in an environment where the remains of a porch of a fourteenth-century cloister coexist with spaces built in the 1960s, following the bombings of the convent which happened during World War II.
The space has been redesigned around the medieval vaults, built also with the spolia of two Roman columns, so that they remain the core of the main hall of the restaurant, placed on a podium of three steps beyond the entrance.
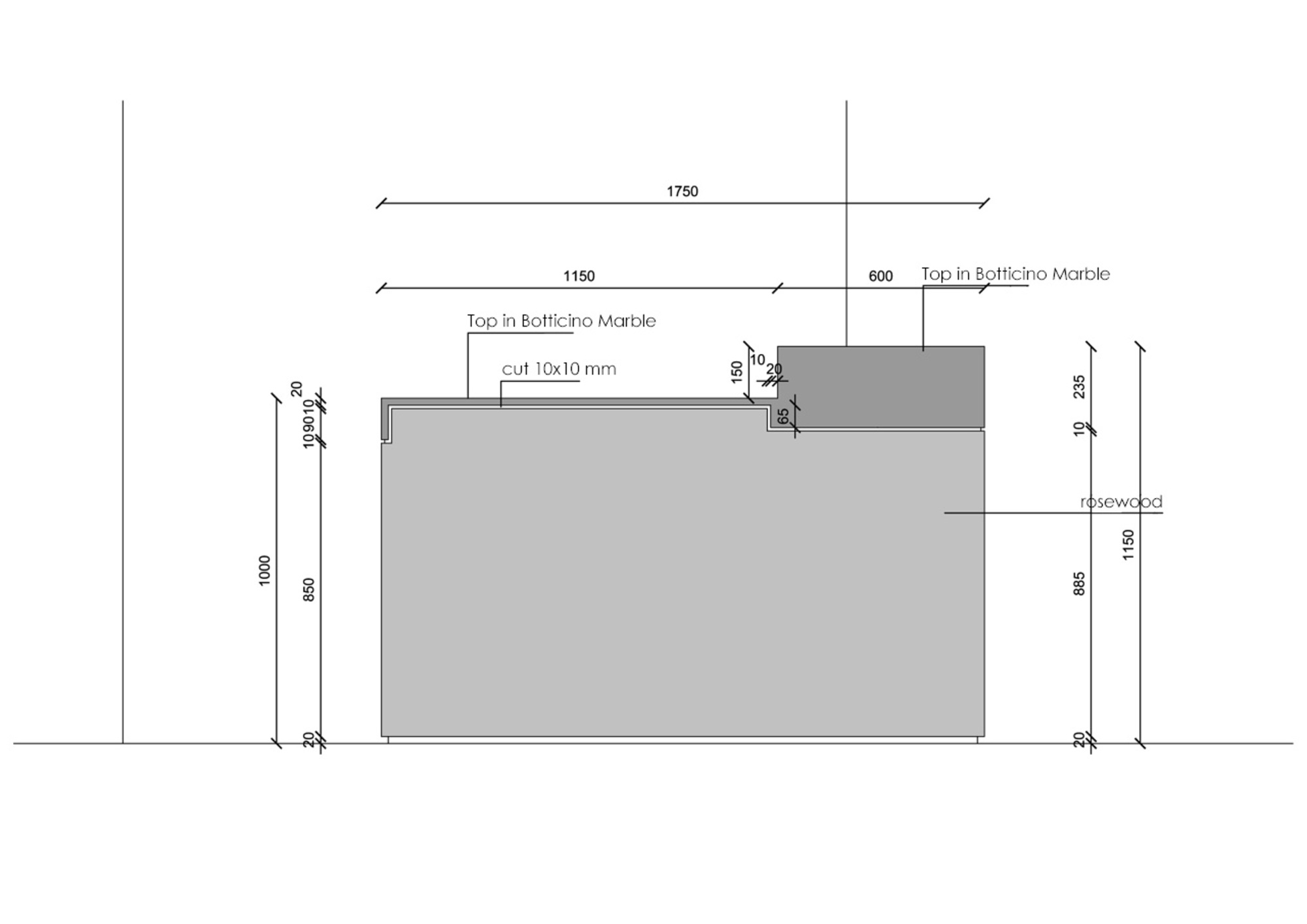
In the latter we find the bar and the reception. The bar is built in rosewood with a thin top in Botticino Marble.
The twentieth century portions of the dining spaces have been treated with a wavy, wooden ceiling that, in a contemporary way, counterpoints the medieval vaults and Botticino marble columns. The ceiling is made of painted spruce fir wood.
Light shapes the ancient and contemporary spaces, suffusing the whole atmosphere.
Il ristorante gambero rosso è inserito in un ambiente dove coesistono i resti del portico di un chiostro trecentesco con spazi realizzati negli anni ’60, a seguito del bombardamento del convento avvenuto nella II guerra mondiale.
Sono stati riprogettati gli ambienti attorno allo spazio voltato medievale, costruito anche con colonne romane di spoglio, che rimane così il fulcro della sala principale del ristorante, posto su un podio di tre gradini rispetto all’atrio di ingresso.
In quest’ultimo si trovano il bar e l’accoglienza.
Le parti novecentesche sono state trattate con un controsoffitto ligneo ondulato che, in chiave contemporanea, fa da contrappunto alle volte e alle colonne in marmo Botticino. La luce da forma allo spazio antico e contemporaneo dando all’insieme un’atmosfera soffusa, dove ci si può rilassare e dedicarsi alla convivialità e al buon cibo.















